Apartament 3+1 Për Shitje në Mjull - Bathore, Tiranë - 154.69 m²

0 €

Për Shitje
Përshkrimi

Ky apartament 3+1 ndodhet në zonën e Mjull - Bathore në Tiranë dhe ofron një hapësirë të bollshme për banim dhe relaksim.
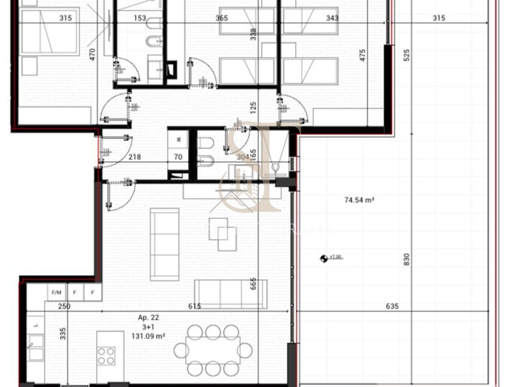
• Sipërfaqe neto: 131.09 m²
• Sipërfaqe bruto: 154.69 m²
• Sipërfaqe tokë: 154.69 m²
• Sipërfaqe verande: 74.54 m²
• 1 sallon ndenjeje
• 1 kuzhinë
• 2 dhoma gjumi
• 2 banjo
• I përshtatshëm për familje ose investim banimi
• Për më shumë informacion, ju lutemi na kontaktoni!

Detajet e Pronës
  • ID e Pronës: ST160
  • Lloji i Pronës: Apartament
  • Statusi i pronës: Ne Ndertim
  • Cmimi: 0 €
  • Dhoma: 4
  • Dhomat e gjumit: 3
  • Tualetet: 2
  • Sip. Totale: 155 m2
  • Sip. e brendshme: 131 m2
  • Sip. Toke: 155 m2