Apartament 1+1 Për Shitje në Mjull - Bathore, Tiranë - 79.12 m²

0 €

Për Shitje
Përshkrimi

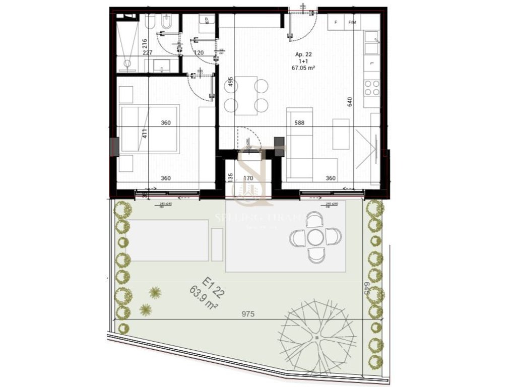
Ky apartament 1+1 ndodhet në zonën Mjull - Bathore në Tiranë dhe ofrohet për shitje me sipërfaqe totale 79.12 m².
• Sipërfaqe neto: 67.05 m²
• Sipërfaqe bruto: 79.12 m²
• Sipërfaqe trualli: 79.12 m²
• Siperfaqe verande: 63.90 m²
• Dhomë ndenjeje: 1
• Kuzhinë: 1
• Dhoma gjumi: 1
• Pamje nga mali
• Dera kundër zjarrit
• Sallë lojërash dhe palestër në infrastrukturë
• Aferësia me polici dhe shkollë
• Ndërtim i vitit 2025
• Nuk ka hipotekë
• Për më shumë informacion, ju lutem na kontaktoni!

Detajet e Pronës
  • ID e Pronës: ST145
  • Lloji i Pronës: Apartament
  • Statusi i pronës: Ne Ndertim
  • Cmimi: 0 €
  • Dhoma: 2
  • Dhomat e gjumit: 1
  • Sip. Totale: 79 m2
  • Sip. e brendshme: 67 m2
  • Sip. Toke: 79 m2